あなたはどっち?和室編①

あなたはどっち?和室編①

みなさんは、①と②のどちらの和室がお好みでしょうか?
①フラットタイプ
②小上がりタイプ
①フラットタイプ

🏠メリット🏠
✿空間が広く見える
✿つまずきにくい
✿バリアフリー
🏠デメリット🏠
✿ほこりやゴミが畳に侵入しやすい
✿空間の独立性が低い
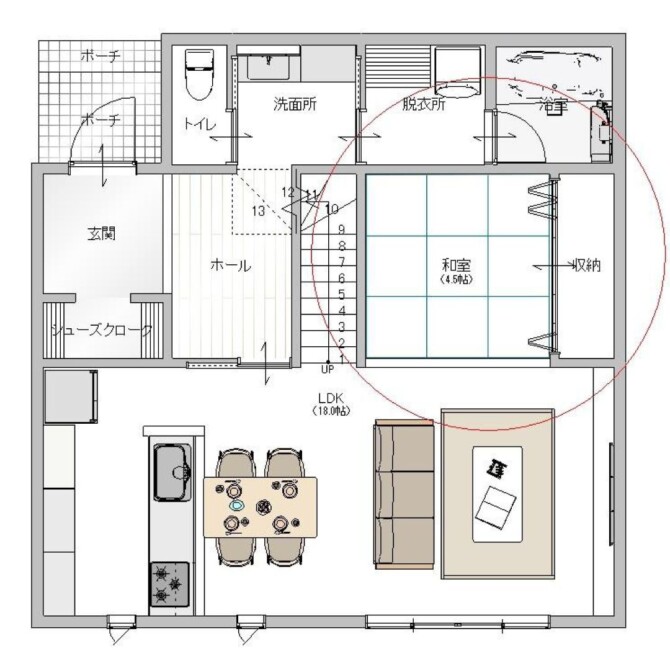
②小上がりタイプ

🏠メリット🏠
✿腰かけやすい
✿床下に収納スペースをつけれる
🏠デメリット🏠
✿バリアフリーではなくなる
✿ロボット掃除機が使えない
みなさんは、①と②のどちらの和室がお好みでしょうか?
高松東店モデルハウスは、②の小上がりタイプです!!
フラットにするか小上がりにするか迷われている方は、
ぜひ実際に見て、体感してみてください♪
☟高松東店モデルハウスはコチラから☟

🌸サンドアートワークショップ🌸
\ 3月毎週土日開催 /
おうちのインテリアにいかがでしょうか(*^▽^*)
春らしい色合いのパーツをたくさんご用意しております!
みんなでわいわい楽しいワークショップにしましょう♪
🌸ご予約方法🌸
お電話もしくはHPからのご来場予約をお願い致します。
🌸お問い合わせ先🌸
ユニバーサルホーム高松東店
TEL 087-843-2340
※定休日:毎週火曜、水曜

\高松東店スタッフ紹介/
長谷 剛 (ハセ タケシ)
1998年入社
★・・・趣味・・・★
旅行
映画鑑賞(アクション、ホラー、SF映画)
車いじり
★・・・得意料理・・・★
パスタ
ハンバーグ
ポトフ
★・・・家づくりで好きなこと・・・★
家具、家電選び
居石 佳門 (オリイシ ヨシカド)
2005年入社
★・・・趣味・・・★
映画鑑賞(SF映画)
ゲーム(秘密♡)
★・・・特技・・・★
先読み力
★・・・家づくりで好きなこと・・・★
将来設計
瀬尾 礼花 (セオ アヤカ)
2012年入社
★・・・趣味・・・★
旅行
カフェ巡り
★・・・特技・・・★
計算
★・・・家づくりで好きなこと・・・★
プラン作成
横山 綺夏 (ヨコヤマ アヤカ)
2024年入社
★・・・趣味・・・★
カフェ巡り
YouTube
★・・・好きな食べ物・・・★
チョコ
★・・・家づくりで好きなこと・・・★
新しい設備を見ること
宇野 朱音 (ウノ アヤネ)
2025年入社
★・・・趣味・・・★
編み物
タルトづくり
喫茶店巡り
★・・・好きなアイドル・・・★
TOMORROW X TOGETHER
★・・・家づくりで好きなこと・・・★
イベント企画
瀬尾 晴 (セオ ハルカ)
2025年入社
★・・・趣味・・・★
釣り
映画鑑賞(アクション系)
★・・・得意料理・・・★
ミートパスタ
★・・・家づくりで好きなこと・・・★
プランニング















