【宗像店】平屋か、2階建てか。迷っていませんか? 平屋と2階建ての2棟同時見学会開催します!
こんにちは。
ユニバーサルホーム宗像店です。

家づくりを考えるとき
平屋にする?
2階建てが良い?
と悩まれる方も多いのではないでしょうか。
今回の見学会では
平屋のモデルハウスと
2階建て注文住宅
この2棟同時見学会を開催します!
開催日:2026年4月11日(土)・12日(日)
開催時間:午前10時~午後5時
開催場所:平屋のモデルハウス→古賀市
2階建て注文住宅、オーナー様邸→福津市
↓ご予約はこちらから↓
今回の見学会会場は
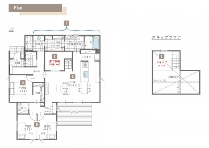
36坪・4LDKの2階建てのお家です。
お施主様が毎日の暮らしやすさを大切にして
考えたお家です。

見どころ①
家事がスムーズになる回遊動線
玄関からシューズクローク
↓
ファミリークローゼット
↓
ランドリー、脱衣室
↓
LDK
と繋がる回遊動線。
毎日の家事や片付けがスムーズになる間取りです。
見どころ②
21帖超えのLDK
フルフラットキッチンからLDK全体を見渡せる開放的な空間。
畳スペースもあり家族がゆったりくつろげる場所に
なっています。

見どころ③
生活感をスッキリ隠せる収納
広々パントリーやシューズクローク、
テレビ裏収納など
生活感を見せない工夫も
ぜひご覧ください。
見どころ④
洗濯がラクになるランドリー動線。
脱衣ランドリーから
勝手口を通ってウッドデッキへ。
そのまま外干しもできる
便利な洗濯動線になっています。
そしてこの日は特別。
平屋モデルハウスも見学できます!

完成見学会のお家とあわせて
2棟同時にご見学いただけます!
モデルハウスと実際の注文住宅。
それぞれの住まいをご覧になることで
家づくりのイメージも広がります。
完成見学会はこんな方におススメです!
✅家づくりを考えはじめた方
✅平屋か2階建てか迷っている方
✅家事ラク動線の間取りを見てみたい方
✅実際の注文住宅を見てみたい方
ゆっくり見学されたい方はご予約がお勧めです。
見学会は予約なしでもご覧いただけますが
事前にご予約いただくと
ゆっくりご見学いただけます。
家づくりを考えはじめたばかりの方も
お気軽にお越しください。
スタッフ一同、皆さまのご来場をお待ちしております。
開催日:2026年4月11日(土)・12日(日)
開催時間:午前10時~午後5時
開催場所:平屋のモデルハウス→古賀市
2階建て注文住宅、オーナー様邸→福津市
↓ご予約はこちらから↓








