間取り図あり|唐津市|35坪の3LDK|家族のつながりを感じる空間設計と家事ラク動線

間取り図あり|唐津市|35坪の3LDK|家族のつながりを感じる空間設計と家事ラク動線

お家のデータ

施工店
ユニバーサルホーム 唐津店
建物の大きさ

3LDK
1階:75.75㎡(22.91坪)
2階:41.50㎡(12.55坪)
合計:117.25㎡(35.46坪)

階数
2階建て
敷地面積
家族構成
S様ご夫妻、お子様、犬

お客様の声

1、家を建てようと思ったきっかけを教えてください

家賃を払い続けるのがもったいないな、と思うようになったからです。

2、ユニバーサルホームで家づくりをしようと思った決め手は?

営業担当の大浦さん!商品ではなく担当者!!
情熱があり、この人なら任せられると思いました。

3、家づくりで不安だったことや悩んだことは?

どこまで求めてどこで妥協するか、
予算を考え、優先順位を整理しながらしっかり考えました。

4、“我が家のココが自慢!THE★〇〇家スタイル”を教えてください

・ダウンフロア
・廊下をなくした間取り
・家族を感じることができる間取り

とても快適に住むことができています。
強いて言えば、パントリーにもコンセントをつければよかったと思いました!
 
 
 

各担当者からのメッセージ

  • このお住まいを担当した営業スタッフ

    この度はお引渡し誠におめでとうございます!
    初めてお会いした日から、沢山のお打合せを
    させて頂きました。

    合言葉は「一緒に」。

    一緒に考え、一緒に悩んで、一緒に笑顔になって…
    カタチの無い状態から、一つ一つの想いが集まり
    今回、マイホームとして「形」となりました。

    担当者としてご縁を頂けた事、感謝しかありません。
    今後ともよろしくお願いいたします。

△▼△ お住まい情報 △▼△

✨ ページ最後に間取り図公開中✨
ぜひチェックしてくださいね!

 

家族のつながりを大切に、毎日の暮らしやすさにもこだわってつくられたお住まい。

ダウンフロアのリビングによる心地よいくつろぎ空間や、
キッチン中心の家事ラク動線、使いやすさを考えた収納計画など、
日々の家事や子育てをサポートしてくれる工夫が随所に取り入れられています。

ペットと一緒に快適に過ごせるスペースや、ライフスタイルの変化にも対応できる洋室など、
今だけでなくこれから先の暮らしまで見据えた設計も魅力です。

見た目のデザイン性はもちろん、「使いやすさ」や「過ごしやすさ」にもしっかりこだわった、
長く安心して暮らせる住まいに仕上がっています。

これから家づくりを考え始める方や、間取りや動線にこだわりたい方にとって、
参考にしていただけるポイントがたくさん詰まった一邸です。

 

 

 

外観

ダークカラーをベースに、玄関まわりに明るいカラーを取り入れた外観

ダークカラーをベースに、玄関まわりに明るいカラーを取り入れた外観は、上品で落ち着いた印象に。

メインの外壁は、ALC「スマートライン25」でグランロック塗装「KG-460」、
玄関まわりはALC「アビートライン25」にグランロック塗装「KG-420」を採用し、
色のコントラストが美しく映える仕上がりです。

YKK AP「Venato D30/マキアートパインカラー」の玄関ドアは、
横ラインとブラックガラスが、すっきりと洗練された雰囲気を演出。

玄関前にはドアの半分ほどの高さの門柱を設け、外からの視線をやわらかく遮りながら、
安心感のある玄関まわりに仕上げました。

カーポート付きのゆとりある駐車スペースは、雨の日の乗り降りもスムーズ。
来客時にも安心できる、毎日の暮らしにやさしい設計です。

 

 

 

玄関ホール&シューズクローク

ナチュラルカラーでまとめた玄関ホール

自転車2台も収納できる約2.2帖のシューズクローク

ナチュラルカラーでまとめた玄関ホールは、帰宅した瞬間ほっとするやさしい空間。
アクセントに採用したエコカラットプラス「ヴァルスロック」が上質感をプラスします。

約2.2帖のシューズクロークは、自転車2台までしっかり収納。

シューズクロークの出入り口は、やわらかな曲線を描くアーチ型の開口に。
玄関ホールのニッチも同じように曲線でそろえ、空間にやさしい統一感を持たせています。

 

外出・帰宅の動線がスムーズな玄関ホール

やわらかな光が玄関ホールまで差し込む大きなガラス面のリビングドア

上着を掛けたりカバンを置けるスペースを設け、外出・帰宅の動線もスムーズ。
ホール収納も設計し、「自然と片付く玄関」は、忙しい毎日の強い味方です。

リビングドアは、ウッドワン「ハイアウトセット引戸B-DC/ウォームグレーカラー」。
大きなガラス面からやわらかな光が差し込む、
玄関ホールまで明るく、開放的な空間です。

 

 

 

ダイニングキッチン

家族が自然と集まり会話が弾む、約10.9帖のダイニングキッチン

玄関ホールの先に広がるのは、約10.9帖のダイニングキッチン。
家族が自然と集まり、会話が弾むあたたかな空間です。

木目の下がり天井が空間にリズムを生み、やさしい雰囲気の中にさりげない上質感をプラス。
毎日過ごす場所だからこそ、居心地のよさにこだわりました。

ダイニングを彩るのは、印象的なデザインの照明。
食卓をやわらかく照らし、日常のひとときを少し特別に感じさせてくれます。

 

ホワイトカラー基調、明るくやさしい印象のダイニングキッチン

床はウッドワン「ピノアース(アイボリー)」の無垢フローリング。
素足でも気持ちの良いぬくもりある空間に。
ホワイトカラーを基調とし、明るくやさしい印象に仕上がりました。

 

キッチンとカップボードのカラーを統一して、上品にまとまった美しいキッチン空間

キッチンはタカラスタンダード「オフェリア」。
お施主様が作業しやすいよう、高さ90cmに設定。

腰壁部分にはウッドワンのオーダーカウンターを設けて、より使いやすい設計に。
対面キッチンなのでリビング全体を見渡すことができ、家族との会話も自然と弾みます。

キッチンと横並びダイニング、キッチン奥のパントリーで、
配膳・片付け、買い物後の収納もスムーズに。
忙しい毎日の家事負担を軽減してくれる、効率的な動線です。

背面にはキッチンとカラーをそろえたカップボードを設け、
上品にまとまった美しい空間に。
床には水や汚れに強い磁器質タイル(アイコットリョーワ)を採用し、お手入れもラクに。

見た目の美しさと使いやすさのどちらも大切にした、こだわりのダイニングキッチンです。

 
見た目の美しさと使いやすさのどちらも大切にした、こだわりのダイニングキッチン

お子様も、お手伝いがとっても楽しそうですね!

 

 

 

カウンタースペース

リビングの一角にある、家族の気配を感じながら使えるカウンタースペース

可愛らしいアクセントクロスに、扉付きニッチ収納を備えたカウンタースペース

リビングの一角には、家族の気配を感じながら使えるカウンタースペースを設計。

可愛らしいアクセントクロスが空間のポイントになり、ちょっとした作業時間も気分UP!
窓から光が入る明るい空間で、家族それぞれが思い思いに使える場所になりました。

扉付きのニッチ収納もあり、細かなものもすっきり片付きます。

 
 
 

リビング

空間に奥行が感じられて開放的な、ダウンフロアのリビング

夏はひんやりと、冬は床暖房で暖かく快適なタイル床のリビング

南向きのリビングは、やさしい光がたっぷり差し込む心地よい空間。

ダウンフロアにしたことで、空間に奥行きが生まれ、より広く感じられます。
ダイニングキッチンとゆるやかにつながりながらも、ほどよく空間が分かれ、
落ち着いてくつろげることもポイントです。

カーテンボックスを天井に埋め込むことで、縦の広がりも演出。
タイル床は夏はひんやり、冬は床暖房でぽかぽかと、一年中快適に過ごせます。

 
 
 

ペット&収納スペース

リビングと洋室の間に設けられた、約1.8帖のペット&収納スペース

可動棚の収納で、ライフスタイルに合わせて使い方を変えられます。

リビングと洋室の間には、約1.8帖のペット&収納スペースを確保。
ワンちゃんの食事や寝床として使えるだけでなく、お子様のおもちゃ収納としても活躍しています。

ライフスタイルに合わせて使い方を変えられるよう、可動棚を設けました。
ロールスクリーンでさっと隠せるので、来客時も安心です。

 
 
 

1F洋室

ライフスタイルに合わせて多用途に使える、約5.4帖の1F洋室

約5.4帖の1F洋室は、現在はお子様の遊び場として活用。

戸を閉めると個室としても使えるので、来客時の客間や将来的な寝室など、
ライフスタイルの変化に合わせて、長く使える一室です。

ホスクリーン付きで室内干しもでき、天候に左右されないのも嬉しいポイント。
窓から光がしっかり入る、明るく心地よい空間です。

“今も将来も使いやすい”を叶えた、便利な洋室が完成しました。

 
 
 

独立洗面台

光を通しながらも視線を遮ることができる、 famitto-Gのガラス引戸

帰宅後、家族と顔を合わせたあとに、手洗いができる間取りです。

光を通しながらも視線を遮ることができるよう、
YKK AP「famitto-G(DGBデザイン)」のガラス引戸を採用。

この洗面台を中心に、右手にはトイレ、左手には脱衣室兼ランドリールーム・浴室と続きます。
ダイニングキッチンとも近く、忙しい毎日をラクにしてくれる工夫が詰まっています。

 

ホワイトとベージュカラーを基調にまとめた、毎日心地よく使える洗面空間

ホワイトとベージュカラーを基調にまとめた、毎日心地よく使える洗面空間。

洗面台はアイカ工業「スマートサニタリー」。
カウンターや収納を自由に組み合わせることができ、
ホテルライクで洗練されたデザインが素敵ですね!

気兼ねなく使えるよう、脱衣室兼ランドリールームと引戸で仕切ることができます。

 

 

 

1Fトイレ

清潔感のあるホワイト・グレーカラーでまとめた1Fトイレ

トイレはTOTO「GG-J2」を採用。
清潔感のあるホワイト・グレーカラーでまとめています。

背面には壁を設け、その奥に収納スペースを確保。
正面からは見えないので、生活感を抑えながらしっかり収納できます。

来客時も安心できる、すっきりとした空間に仕上がっています。

 
 
 

浴室

広々とした空間で、ゆったりと一日の疲れを癒すことができる、1818サイズの浴室

浴室にはTOTO「サザナHTシリーズ Tタイプ(1818サイズ)」を採用。

広々とした空間で、ゆったりと一日の疲れを癒すことができます。
ホワイトカラーを基調に、パティオベージュのアクセントパネルがやさしい雰囲気を演出。

家族みんながリラックスできる、心地よいバスタイムを叶えます。

 
 
 

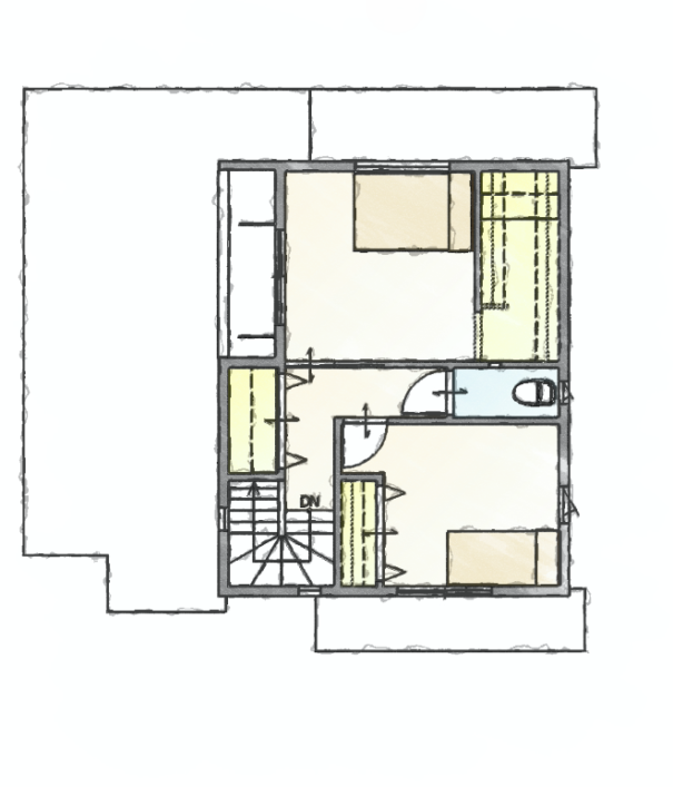
🔍間取り図公開✨

 
【1F】

 
【2F】

お問合せ・ご予約はコチラ⇒唐津店はこちら

土地からお探しの方はチェック⇒おすすめ土地情報はこちら