間取り図あり|唐津市|35坪の3ldk+小上がり和室|片づけやすい家事ラク設計
お家のデータ

- 施工店
- ユニバーサルホーム 唐津店
- 建物の大きさ
-
3LDK+小上がり和室
1階:71.50㎡(21.62坪)
2階:45.00㎡(13.61坪)
合計:116.50㎡(35.24坪) - 階数
- 2階
- 敷地面積
- 家族構成
- E様ご夫妻、お子様
お客様の声
1、家を建てようと決断した理由を教えてください
子供が快適に過ごせる家がほしかったからです。
2、ユニバーサルホームを知ったきっかけや、決めた理由を教えてください
ネットで床暖房が標準仕様のハウスメーカーを調べて、ユニバーサルホームを知りました。
担当の方の対応がとても良く、内容も良かったため決めました。
3、“我が家のココが自慢!THE★〇〇家スタイル”を教えてください
毎日過ごしやすいように、動線にこだわりました。
4、これから家を建てようという方へ、アドバイスや応援メッセージをお願いします
対応も良く、理想のマイホームを建てることができました。
家の性能も良いため、暑すぎず、寒すぎず、快適に過ごせています。
各担当者からのメッセージ
△▼△ お住まい情報 △▼△
✨ ページ最後に間取り図公開中✨ ぜひチェックしてくださいね!
落ち着きのあるグレーカラーに、
木目をさりげなく取り入れた上品な外観デザイン。
外観から室内までトーンをそろえた、
統一感のある素敵なお住まいが完成しました。
無垢床が心地良いリビングは、家族が自然と集まる空間に。
南側の大きな窓から光が差し込み、のびやかで明るい毎日を叶えます。
家事ラク回遊動線やパントリー・リビング収納、ランドリールームまで、
“暮らしやすさ”を丁寧に積み重ねた間取りも大きな魅力です。
家族が顔を合わせやすく、片づけやすい。
忙しい毎日を、軽やかにしてくれるお住まいとなりました。
デザイン性だけでなく、
一年を通して快適に過ごせる性能、
そして将来まで見据えた使いやすさ。
これから家づくりをお考えの方に、
ぜひ参考にしていただきたい施工事例です。
外観


グレーカラー基調、ブラックカラーの窓枠で引き締めた外観に、
木目の玄関ドアが映える、かけ違い屋根のモダンな外観です。
外壁はALC「シェイドカット」、メイン塗装はイベリアン「JB-704」グレーカラーで、
玄関まわりのみ「JB-701」の御影石調仕上げで、光沢のある上質な印象に。
コンクリート洗い出し仕上げにレンガをあしらったアプローチに、
木目デザインの機能門柱が、おしゃれな外観を引き立てています。

玄関上部は、ニチハの木目調軒天(ティンバーブラウンカラー)を採用。
玄関ドアはYKK AP「ヴェナートD30」F06Nデザイン。
プラチナステンカラーの枠色に、キャラメルチークの扉カラーを組み合わせました。
正方形のスリットガラスが縦に7つ並ぶデザインは、スタイリッシュで印象的。
ホール・シューズクローク

床材はウッドワン「ピノアース」アイボリーカラーの無垢床。
クロスはサンゲツ「SP-9739」ライトグレーカラーの石目調。
玄関ドアのスリットガラスや採光窓から光が入る、
明るくやさしい雰囲気のホールです。

玄関とホールの2way動線を確保した約1.8帖のシューズクローク。
可動棚でたっぷり収納でき、ベビーカーやアウトドア用品もスッキリ。
たて滑り出し窓付きで換気も可能です。
背面のアクセントクロスはリリカラ「LB-9591」モルタル調グレージュカラー。
床タイルはアイコットリョーワ「MD-300M/86」。
一目で収納場所がわかるので、お子さまも自分で片づけやすい設計。
家族みんなで整えられるシューズクロークです。
リビング

約17.9帖のゆとりあるリビングは、家族が自然と集まる住まいの中心。
床材はホールと同じウッドワン「ピノアース」アイボリーカラーです。
無垢材なので、夏はさらっと心地よく、冬は床暖房でぽかぽか。
一年中快適に過ごせるリビングが完成しました。
照明はダウンライトですっきりと。空間により広がりを感じられます。

南側の大きな掃き出し窓から光が差し込み、明るく開放的。
カーテンボックスを設けることで天井が高く感じられ、
空間全体がすっきりと美しく見えます。

リビングの一角に、リモコンニッチを設けました。
スイッチ類を一か所にまとめることで、壁まわりがすっきり整った印象に。
リビングドアからキッチン横を通り、リビング階段へ。
自然と家族が顔を合わせられる間取りです。
小上がり和室


リビング一角にある、約4.5帖の小上がり和室。
リビングの床から高さ30cmで、立ち座りしやすい設計です。
モダンな和風のペンダントライトがアクセントに。
オープン設計でリビングとゆるやかにつながり、
空間がより広く感じられます。
畳はダイケン「健やかおもて」清流⑪銀鼠色。
機械すき和紙を樹脂コーティングした素材で、
イ草に比べて撥水性に優れ、カビや色あせの心配も少なく安心です。
ライトグレーカラーのクロスにクールグレーカラーの収納扉、
グレー系の畳を合わせた落ち着きのある和室。
天井にはサンゲツ「SP-9798」ブラックカラークロスを取り入れ、空間を引き締めました。
お子さまの遊び場やお昼寝スペースから来客時の和スペースとしても活用でき、
写真からも、お子様がくつろいでいる様子が伝わってきますね。
キッチン


キッチンはクリナップ「STEDIA」。ロッシュチャコールカラーの扉に、
天然石をモチーフにしたアクリストンワークトップ(カリーザホワイトカラー)、
ホワイトクラウドカラーのキッチンパネルを組み合わせ、上質で落ち着いた印象に仕上げました。
フルフラットキッチンに、フロントスクリーンのオイルガードを採用することで、
視線を遮らず、リビングや小上がり和室まで見渡せます。
高さを変えた2つのペンダントライトが空間に動きを添え、
毎日立つのが楽しみになるお洒落なキッチンに。
床はアイコットリョーワ「MD-300U/87」のタイル仕上げ。
床暖房で冬も足元から暖かいので、家事もはかどります。
リビング収納・パントリー

リビング入って右手、左側からリビング収納とパントリー、
左手にキッチンの冷蔵庫がある間取りで、買い物帰りの動線もスムーズ。
ハイドア仕様でしっかり収納でき、扉付きなので来客時も安心。
リビング収納下部にはロボット掃除機のスペースも確保しました。
片づけやすさを考えた間取りで、リビングが自然と整い、
毎日の暮らしにゆとりが生まれます。
ファミリークローク・脱衣室兼ランドリールーム

リビングに隣接するファミリークローク(約2.4帖)は、
リリカラ「LB-9574」ペールイエローカラーのアクセントクロスで優しく明るい印象に。

ファミリークロークと、脱衣室兼ランドリールームを横並びに設計。
左手奥がファミリークロークです。
リビング・ホールのどちらからも行ける、家事ラク回遊動線です。
床材はタイル床(アイコットリョーワ「WS-300U/W2」)。
床暖房で冬でも暖かく、耐久性がありお手入れしやすい仕様です。
リリカラ「SP-9572」ブルーグレーカラーのアクセントクロスで、
清潔感のある空間に仕上げました。

脱衣室兼ランドリールームは、カウンタースペース(約1.4帖)と
脱衣ランドリールーム(約2.1帖)を分けたレイアウト。
引戸で仕切ることができるため、来客時や家族の入浴中も気兼ねなく家事ができます。
カウンターでは座ってアイロンがけをしたり、洗濯物をたたんだりと作業も快適。
背面には可動棚を設け、タオルや洗剤類もすっきり収納できます。
洗う・干す・たたむが完結する、家事ラク設計です。
独立洗面台

ホールに設けた独立洗面台は、TOTO「オクターブLite」。
帰宅後すぐに手洗いができ、お子さまの“ただいま”から手洗いまでがスムーズな動線です。
向かいのトイレとあわせて、このスペースで使うものをまとめて収納できるよう、
横には7段の可動棚を設けました。
タオルやストック品もすっきり収まり、見た目も整います。
トイレ

1Fトイレはホールの独立洗面台前・脱衣所そばに設けました。
小上がり和室と同じブラックカラーの天井クロスを採用。
壁はリリカラ「LB-9589」の石目調グレーカラーで、
全体をグレートーンでまとめたシックなトイレです。
トイレはTOTO「GG-J1」ロータンクタイプ。
必要なものをスマートに収められるよう、ニッチ収納も設けました。
洋室
2階は、ウォークインクローゼットを備えた主寝室(約7.4帖)と、
収納付きの洋室(約4.5帖・4.7帖)、トイレを設計。
お子さまのお部屋や書斎、趣味スペースなど、
ライフスタイルに合わせて多用途に使える間取りです。

写真の約4.5帖洋室は、柔らかな色味のアクセントクロスで優しい雰囲気に。
床材はウッドワン「コンビットブラッシングオークV152」ホワイトカラー。
美しい木目と心地よい肌触りが、部屋全体にあたたかみを添えます。
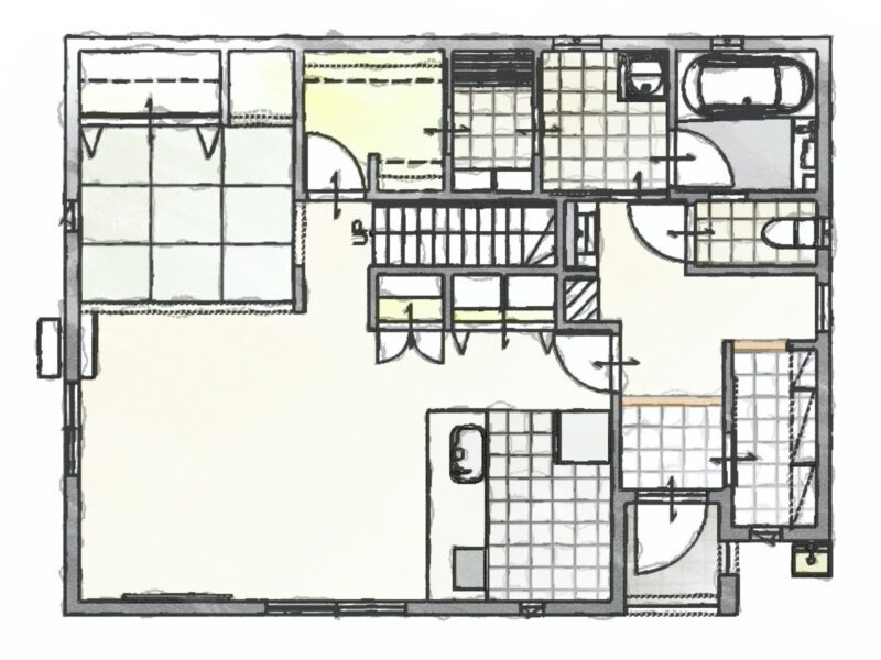
🔍間取り図公開✨
【1F】

【2F】











